INGEGNERIZZAZIONE DELL'ARCHITETTURA TECNICA E GESTIONE DELLE COMPLESSITÀ DI PROGETTO

Menu

Portfolio

Portfolio Infrastrutture

Infrastrutture > Parcheggio per parco giochi a Limbiate - Groane S.r.l.

Parcheggio per parco giochi a Limbiate - Groane S.r.l.

Progettazione preliminare, definitiva ed esecutiva per la sistemazione del parcheggio a servizio del Parco Giochi Greenland, sito nel territorio del Comune di Limbiate (MB), con studio della viabilità e dell’impianto per la raccolta acque meteoriche del parcheggio.

 

Importo dei lavori: € 1.468.600,00

 

Le opere in progetto possono così riassumersi:

 

- Realizzazione di nuovo parcheggio a suolo drenante su un’area d’intervento di circa 35.000 mq, provvisto di circa 820 posti auto, più 54 posti auto per disabili con 11 corsie longitudinali e 2 trasversali di percorrenza per la ricerca del posto.

 

- Razionalizzazione dell’afflusso all’area, facilitando l’ingresso al parcheggio, ancorché gestito a pagamento e riorganizzazione della viabilità interna ed esterna.

 

- Realizzazione di strade su tracciati esistenti che avranno passaggi di attraversamento, pedonale e per disabili, con caratteristiche dissuasive della velocità veicolare e segnaletica orizzontale e verticale.

 

La tipologia delle opere è la seguente:

 

- Stratigrafia dei parcheggi: orizzonte drenante di ghiaione grosso, spezzato, rullato e costipato per uno spessore di 35 cm; telo geotessile in tessuto non tessuto, peso 150 gr/mq; strato permeabile di pietrisco di grana variabile (da 3 a 10 mm); spessore 10 cm; letto di posa in sabbia silicea; spessore 3 cm; griglie in HDPE (polietilene ad alta densità), carrabile, dim 50x40 cm, spessore 5 cm, con riempimento in ghiaietto.

 

- Raccolta e smaltimento delle acque meteoriche per strade veicolari, aree dei parcheggi e marciapiedi, con adozione di sistemi di smaltimento acque meteoriche atte a ridurre le portate prima del recapito finale e comprensivi di trattamento di disoleazione e dissabbiatura prima dello smaltimento nel sottosuolo.

 

Quest’ultimo, appositamente indagato per l’accertamento dell’idoneità al recapito dell’acqua piovana, viene raggiunto da un sistema di trincee drenanti che raccolgono l’acqua proveniente dalla pavimentazione drenante superficiale a griglie in HDPE.

 

- Sono state previste sei trincee drenanti trasversali alla pendenza naturale del terreno e quindi della pavimentazione drenante. Ciascuna trincea recapita le acque piovane in un sistema di pozzetto di ispezione, disoleatore, pozzetto di scarico e sottostante pozzo drenante, attraversante lo strato impermeabile fino a raggiungere quello permeabile.

 

- Le acque nere per i servizi igienici del Parco Giochi Greenland, adiacente al parcheggio descritto, vengono recapitate ad una vasca Imhoff di nuova costruzione e scaricate nel corso d’acqua esistente. A valle della vasca Imhoff è previsto un percolatore aerobico con sfiato e successivamente un sistema di fitodepurazione per l’eventuale impiego dell’acqua per l’irrigazione e l’abbattimento di eventuali odori provenienti dalla vasca.

 

- Il sistema di distribuzione del liquido di scarico deve permettere un’uniforme irrorazione dello stato filtrante, per cui le tubazioni verranno poste a bracci con distanza di circa 1 m l’uno dall’altro. Le tubazioni saranno ricoperte da un ulteriore strato di ghiaia fine lavata, per uno spessore di 10-15 cm. In questo strato di ghiaia verranno poste a dimora le piante.

Disegni

Clicca sull'immagine per visualizzarla interamente

Tavola di progetto della viabilità del parcheggio

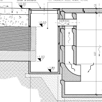
Progetto di un disoleatore

Studio e rappresentazione di un sistema di fitodepurazione

Studio e calcolo della vasca imhof e pozzetti d'ispezione

IL PROGETTO IN CIFRE

1.468.600 importo dei lavori

35.000 mq, superficie del nuovo parcheggio a suolo drenante

820posti auto, (più 54 posti auto per disabili)