INGEGNERIZZAZIONE DELL'ARCHITETTURA TECNICA E GESTIONE DELLE COMPLESSITÀ DI PROGETTO

Menu

Portfolio

Portfolio

Infrastrutture > Nuove funivie SkyWay Monte Bianco > Stazione intermedia Pavillon

Stazione intermedia (Q.ta 2.170 m)
Pavillon

Stazione interamente chiusa.

Superficie in pianta sviluppata su due piani: m² 2.200

Destinazione d'uso locali principali: locali tecnici funiviari e accessori, piani di imbarco del 1° e 2° tronco, spazi commerciali, sala ristorante, bar, sala multimediale da 97 posti (cinema/sala conferenze), terrazze panoramiche, due residenze di servizio.

 

Ristrutturazione Stazione Esistente (Q.ta 2.170 m) Pavillon

Ristrutturazione dell'attuale stazione, sviluppata su 4 livelli per complessivi 1.350 m², con chiusura del piano di imbarco del 1° tronco e conservazione di una cabina della vecchia funivia, allestimenti museali nei locali interni.

Disegni
Cloud Zoom small image

Sezione longitudinale della Stazione

Cloud Zoom small image

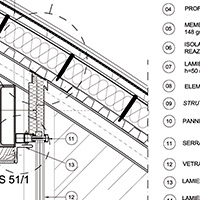
Dettaglio della copertura curva in zinco-titanio

Cloud Zoom small image

Studio dell'impermeabilizzazione della terrazza tra il corpo principale e il corpo che contiene sala cinema e ristoranti

Cloud Zoom small image

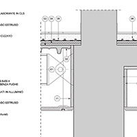
Risoluzione del ponte termico nel corpo ristoranti

Cloud Zoom small image

Sezione della vecchia stazione, ristrutturata e convertita in museo

Progetto realizzato

Vista della stazione a Punta Helbronner, interamente rivestita da una pelle in zinco-titanio.

A Helbronner si affacciano due terrazze panoramiche, una a livello del piano imbarco e una in copertura che consente una vista a 360ツコ.

Volumi in vetro aggettanti sul vuoto, ricordano i cristalli di quarzo.

Interni della stazione. Sullo sfondo la grande cupola panoramica rivolta sul Monte Bianco, attrezzato per le informazioni al pubblico con sistemi multimediali.

Interni della stazione. Sullo sfondo la grande cupola panoramica rivolta sul Monte Bianco, attrezzato per le informazioni al pubblico con sistemi multimediali.

Interni della stazione. Sullo sfondo la grande cupola panoramica rivolta sul Monte Bianco, attrezzato per le informazioni al pubblico con sistemi multimediali.

Interni della stazione. Sullo sfondo la grande cupola panoramica rivolta sul Monte Bianco, attrezzato per le informazioni al pubblico con sistemi multimediali.

Interni della stazione. Sullo sfondo la grande cupola panoramica rivolta sul Monte Bianco, attrezzato per le informazioni al pubblico con sistemi multimediali.

Interni della stazione. Sullo sfondo la grande cupola panoramica rivolta sul Monte Bianco, attrezzato per le informazioni al pubblico con sistemi multimediali.

Interni della stazione. Sullo sfondo la grande cupola panoramica rivolta sul Monte Bianco, attrezzato per le informazioni al pubblico con sistemi multimediali.

Interni della stazione. Sullo sfondo la grande cupola panoramica rivolta sul Monte Bianco, attrezzato per le informazioni al pubblico con sistemi multimediali.

Interni della stazione. Sullo sfondo la grande cupola panoramica rivolta sul Monte Bianco, attrezzato per le informazioni al pubblico con sistemi multimediali.

Cantiere

Vista della stazione a Punta Helbronner, interamente rivestita da una pelle in zinco-titanio.

A Helbronner si affacciano due terrazze panoramiche, una a livello del piano imbarco e una in copertura che consente una vista a 360ツコ.

Volumi in vetro aggettanti sul vuoto, ricordano i cristalli di quarzo.

Interni della stazione. Sullo sfondo la grande cupola panoramica rivolta sul Monte Bianco, attrezzato per le informazioni al pubblico con sistemi multimediali.

Interni della stazione. Sullo sfondo la grande cupola panoramica rivolta sul Monte Bianco, attrezzato per le informazioni al pubblico con sistemi multimediali.

Interni della stazione. Sullo sfondo la grande cupola panoramica rivolta sul Monte Bianco, attrezzato per le informazioni al pubblico con sistemi multimediali.

Rendering

Nuova stazione intermedia del Pavillon, accanto alla vecchia Stazione, ristrutturata e trasformata in spazio museale.

Vista della zona d'imbarco del secondo tronco. La Stazione del Pavillon è interamente chiusa da vetrate.

Scale di collegamento tra i due piani d'imbarco.

Verso il Monte Bianco, una copertura ad ala racchiude le aree destinate all'accoglienza ed al ristoro del pubblico.

La stazione nuova e quella vecchia, riconvertita a museo, sono collegate da un passaggio coperto freddo.

IL PROGETTO IN CIFRE

2.170 metri s.l.m.

2.200 mq, superficie in pianta sviluppata su 2 livelli

1.350 mq, superficie della vecchia stazione ristrutturata e riconvertita in museo